16/02/2026 Category: Land Registry and Property Records
Let's find out together how to read the main information, identify the parcels, and interpret the essential data for your legal security.

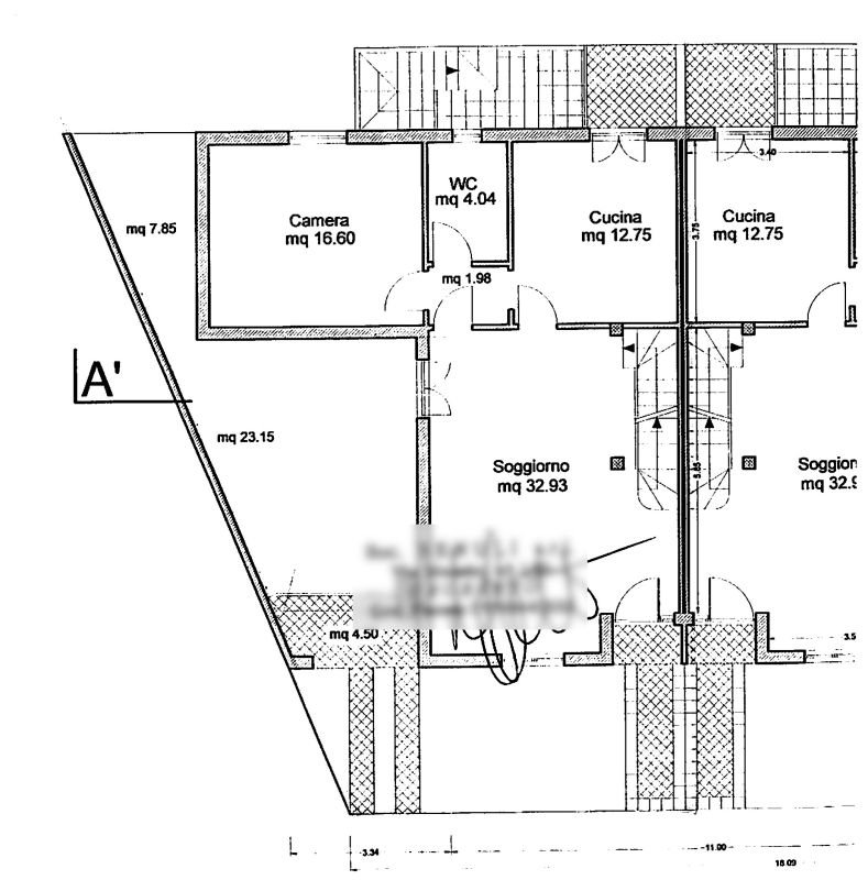
The cadastral plan is an essential tool for anyone who owns or wants to buy a property in Italy. This official document shows the layout of the spaces, the boundaries, and the internal division of the property, helping to avoid errors during sales, inheritances, or renovations.
A cadastral plan is a technical drawing registered with the Italian Land Registry that graphically represents the real estate units of a building or land. It provides essential information such as:
Correctly interpreting a cadastral floor plan is essential for:
Today, many cadastral floor plans are available in digital format and can be requested online through dedicated services such as those offered by WP Advisor Italy. It is advisable to consult professionals such as surveyors, architects, or notaries to verify the documentation correctly, especially for prestigious or complex properties.
Reading a cadastral floor plan in Italy is not just a bureaucratic obligation, but a real security tool for owners and investors. Knowing how to interpret the information correctly avoids surprises, protects your investment, and ensures compliance with current regulations.
Privacy Notice: We care about your privacy. For more details on how we handle your personal data, please see our Privacy Policy.

Contact us now!